Spoedzorg Zoetermeer
Hoe zorgen we ervoor dat we in de toekomst spoedzorg kunnen blijven bieden aan inwoners uit de Zoetermeerse regio? Als antwoord op deze vraag werken het HagaZiekenhuis, Fundis en Eerstelijns Zorg Zoetermeer (EZZ) al enige tijd aan een uniek concept: een volledig geïntegreerd, gezamenlijk centrum voor acute zorg via één (digitale) voordeur. Dat doen zij vanuit het programma Samen ZoeterMeer Gezond. Zorgverzekeraars, met CZ en VGZ voorop, zijn positief over de plannen. Begin oktober is het definitief besluit genomen. Er komt een unieke, gezamenlijke organisatie voor spoedzorg in Zoetermeer. De naam van deze organisatie is Spoedzorg Zoetermeer. In hoog tempo worden belangrijke stappen gezet om de komst van het gezamenlijke centrum mogelijk te maken.
Lees meer over dit initiatief en de ondersteuning vanuit zorgverzekeraars en gemeente in dit nieuwsbericht.
Wat is Spoedzorg Zoetermeer?
Spoedzorg Zoetermeer is veel meer dan een samenwerking tussen Zoetermeerse zorgaanbieders. Het is een fundamentele integratie van acute zorgverlening in één nieuwe zorgorganisatie. Patiënten krijgen hier na een centrale (digitale) triage direct de zorg die zij nodig hebben, van de juiste zorgverlener. Dit kan een medewerker van de Spoedeisende Hulp (SEH) zijn, maar ook een huisarts of een medewerker van het Regionaal Transferpunt (RTP), dat tijdelijke zorg en ondersteuning voor (kwetsbare) ouderen organiseert. Ook de acute wijkverpleging, die zorgt voor snel inzetbare, kortdurende verpleegkundige zorg aan huis, en de Dienstapotheek zijn onderdeel van dit gezamenlijke centrum.
We bieden alle spoedzorg straks binnen een nieuw op te richten organisatie. Dat doen we vanuit één centraal punt, zowel in een fysieke omgeving als telefonisch en digitaal. Door efficiënt met elkaar samen te werken, ziet een patiënt minder verschillende zorgverleners. En doordat alle zorgverleners op één locatie werken vanuit flexibel inzetbare behandelkamers, beweegt de zorg mee met de patiënt in plaats van dat de patiënt zich moet aanpassen. Meer gemak en tijdbesparing voor zowel de patiënt als de zorgprofessional dus. Meestal kunnen patiënten voor (vervolg)zorg terecht bij een zorgaanbieder in Zoetermeer. Als het nodig of beter is, kan dit ook ergens anders. Bijvoorbeeld in HagaZiekenhuis Den Haag.
Waarom is de komst van Spoedzorg Zoetermeer nodig?
Met Spoedzorg Zoetermeer organiseren we spoedzorg beter, slimmer en toekomstbestendiger. En dat is nodig, want de druk op de acute zorg blijft toenemen. Landelijk, en ook zeker in regio Zoetermeer. Het aantal inwoners groeit, en met de vergrijzing stijgt ook het aantal kwetsbare ouderen dat zorg nodig heeft. Tegelijkertijd is er een tekort aan zorgpersoneel, en staan de huidige zorgorganisaties – zoals de SEH en HuisartsenSpoedpost – al onder grote druk.
Deze ontwikkelingen vragen om een verandering van de manier waarop we met elkaar zorg bieden. Alleen als we meer en anders gaan samenwerken, kunnen we de toenemende zorgvraag aan. Spoedzorg Zoetermeer kan hierin een belangrijke oplossing bieden en past perfect binnen de afspraken van het Integraal Zorgakkoord (IZA). Hiermee is Zoetermeer een voorbeeld voor andere steden met soortgelijke uitdagingen.
Nieuws en updates over Spoedzorg Zoetermeer
Je kunt hier eerdere edities van de nieuwsbrief en nieuwsberichten over Spoedzorg Zoetermeer (voorheen het Centrum Acute Zorg) teruglezen. Wil je op de hoogte blijven van alle ontwikkelingen rondom Spoedzorg Zoetermeer? Schrijf je dan in voor de nieuwsbrief via het inschrijfformulier bij Contact.
Veelgestelde vragen
Welke stappen worden er nu gezet?
In juni 2025 hebben zorgverzekeraars het transformatieplan goedgekeurd. In juli 2025 volgde een voorgenomen besluit van de raden van bestuur en directies van het HagaZiekenhuis, Fundis en EerstelijnsZorg Zoetermeer. In oktober 2025 werd dat besluit definitief. Dat betekent dat Spoedzorg Zoetermeer er gaat komen. Naar verwachting opent Spoedzorg Zoetermeer in juli 2026. Tot die tijd is er nog veel werk te verzetten. We laten je zo snel mogelijk weten wat je de komende periode kunt verwachten.
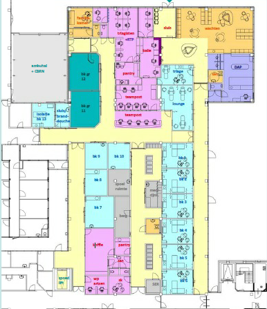
Hoe gaat Spoedzorg Zoetermeer eruitzien na de verbouwing?
Samen met een architect heeft de werkgroep verbouw drie scenario’s ontwikkeld. Inmiddels is daaruit een scenario gekozen. Hieronder staan de tekeningen van voor en na de verbouwing. Meer informatie vind je in de nieuwsbrief: Update Centrum Acute Zorg 2-2025
Wie betaalt voor deze transformatie?
Het opzetten Spoedzorg Zoetermeer kost veel geld. Om zo’n ‘transformatie’ mogelijk te maken, stelt het ministerie van Volksgezondheid, Welzijn en Sport (VWS) een budget beschikbaar, de zogenaamde ‘transformatiemiddelen’. Om aanspraak te maken op deze middelen, moeten zorgverzekeraars zich achter de plannen scharen. En dat is het geval: zorgverzekeraars, met CZ en VGZ voorop, hebben ons transformatieplan goedgekeurd. Dat betekent dat we transformatiemiddelen krijgen uitgekeerd wanneer we de vooraf afgesproken doelen halen. Dit is een belangrijke voorwaarde om Spoedzorg Zoetermeer ook daadwerkelijk te kunnen realiseren.
Een andere voorwaarde is het komen tot duidelijke afspraken over de financiering van de zorg die wordt geboden in het gezamenlijke centrum. Daarover voeren we, samen met de verzekeraars, gesprekken met de Nederlandse Zorgautoriteit (NZA) en het ministerie van VWS.
Wanneer gaan de medewerkers echt iets merken van de komst van Spoedzorg Zoetermeer?
De bestuurders van het HagaZiekenhuis, Fundis en EerstelijnsZorg Zoetermeer hebben definitief besloten dat Spoedzorg Zoetermeer er komt. Eind 2025 starten we met de verbouwing en gaan we toewerken naar de opening van het centrum. We houden medewerkers op de hoogte van de verschillende stappen en mijlpalen in dit proces. En we gaan met hen in gesprek over de gevolgen van de transformatie voor hun eigen werk.
Wanneer gaat Spoedzorg Zoetermeer open?
Wie wordt straks mijn leidinggevende bij Spoedzorg Zoetermeer?
Kom ik straks in dienst van Spoedzorg Zoetermeer?
Aan het begin zal dat nog niet zo zijn. In de eerste 6 maanden van 2026 (Fase I), word je ‘uitgeleend’ (gedetacheerd) aan Spoedzorg Zoetermeer. Dat betekent dat je in dienst blijft bij het HagaZiekenhuis, EerstelijnsZorg Zoetermeer of Fundis. Je ontvangt in die periode nog steeds het salaris via je huidige werkgever, volgens de arbeidsvoorwaarden die je nu hebt. Volgens planning start Fase II begin 2027. Je komt dan wel in dienst bij de nieuwe organisatie.
Waarom worden we eerst "uitgeleend" (gedetacheerd) en komen we pas vanaf januari 2027 in dienst van de nieuwe organisatie?
Om medewerkers geleidelijk te laten wennen aan de nieuwe situatie, is besloten om eerst te detacheren. Zo behoud je jouw eigen leidinggevende en heb je ook nog alle arbeidsvoorwaarden zoals je gewend bent. In de praktijk werk je dan wel voor de cooperatie en werk je nauw samen met nieuwe collega’s uit de andere organisaties.
Krijgt Spoedzorg Zoetermeer een eigen cao?
Betekent een nieuwe of andere cao iets voor mijn salaris?
Je zult er in ieder geval (financieel) niet op achteruitgaan. Met de vakbonden maken we afspraken die worden vastgelegd in een sociaal overdrachtsdocument (SOD). We bekijken per individuele medewerker wat de overgang betekent en gaan hierover met jou in gesprek.
Welke secundaire arbeidsvoorwaarden gaan mee, vallen weg en krijgen we erbij?
In de periode dat je wordt ‘uitgeleend’ (gedetacheerd) aan de nieuwe organisatie, gelden je huidige arbeidsvoorwaarden. Zodra je in loondienst komt bij Spoedzorg Zoetermeer, geldt de Cao Ziekenhuizen voor jou. In de loop van 2026 wordt bekeken wat dit betekent voor de secundaire arbeidsvoorwaarden. Dit wordt ook met de vakbonden afgestemd en vastgelegd in het SOD (zie hierboven).
Mogen huidige medewerkers van EerstelijnsZorg Zoetermeer ook fysiek triage doen bij Spoedzorg Zoetermeer? En wat betekent dit voor het salaris?
Als medewerkers op dit moment fysiek triage uitvoeren, dan zullen zij dat in de nieuwe situatie in afstemming met de nieuwe collega’s ook gaan doen. Er zullen niet meteen gevolgen voor het salaris zijn. In het algemeen geldt dat er aan een nieuw ‘functiehuis’ voor Spoedzorg Zoetermeer gewerkt wordt. Dit is een overzicht van alle functies binnen een organisatie, inclusief functieomschrijvingen, verantwoordelijkheden en niveaus. Op basis daarvan kunnen we kijken wat de doorgroeimogelijkheden zijn naar een andere functie, eventueel na het doen van een opleiding. Elke functie krijgt een waardering volgens de FWG-systematiek. Dit bepaalt hoe hoog je salaris is.
Is er nog inspraak vanuit medewerkers op de vormgeving van de zorgpaden?
Eén van de werkgroepen die we hebben ingericht, houdt zich bezig met de vormgeving van de zorgpaden. Als je specifieke ideeën hebt, dan kun je deze bij de werkgroep inbrengen zodat ze daar besproken worden.
Hoe ziet het organogram eruit?
Het organogram wordt nog uitgewerkt.
Hoe zit het met doorgroeimogelijkheden bij Spoedzorg Zoetermeer?
Er wordt een nieuw ‘functiehuis’ gemaakt voor Spoedzorg Zoetermeer. Dit is een overzicht van alle functies binnen een organisatie, inclusief functieomschrijvingen, verantwoordelijkheden en niveaus. Op basis daarvan kunnen we kijken wat de doorgroeimogelijkheden zijn naar een andere functie, eventueel na het doen van een opleiding.
Is er genoeg personeel om de verandering te kunnen maken?
We starten Spoedzorg Zoetermeer om spoedzorg te kunnen bieden vanuit één team, zonder grenzen tussen de verschillende zorgdisciplines. Daardoor kunnen we efficiënter met elkaar samenwerken en voorkomen we onnodige dubbele handelingen. De verwachting is dat we daardoor meer zorg kunnen bieden met een gelijkblijvend aantal medewerkers.
Wat gaat er veranderen in de rol van SEH-verpleegkundige of medisch hulpverlener?
In de basis verandert er niets aan de rol van SEH-verpleegkundige en medisch hulpverlener.
Gaat het gezamenlijk opleiden met SEH Den Haag nog door?
Het plan is om medewerkers samen met de Spoedeisende Hulp van HagaZiekenhuis Den Haag te gaan opleiden. Op dit moment wordt nog onderzocht of Spoedzorg Zoetermeer zelfstandig mag en kan opleiden. Is dat niet mogelijk? Dan wordt het een opleidingsplek onder verantwoordelijkheid van HagaZiekenhuis Den Haag.
Ik heb bijna een jubileum. Gaan mijn dienstjaren mee naar de nieuwe organisatie, of ben ik ze kwijt?
Blijft mijn BIG-registratie behouden?
Hierin verandert niets. Als je nu BIG-geregistreerd bent, dan blijf je dat ook als je gaat werken bij Spoedzorg Zoetermeer. Het is wel belangrijk dat je zelf aan de voorwaarden voldoet.
Het is goed om te weten dat Spoedzorg Zoetermeer blijft voldoen aan de level 3-norm voor de opvang van traumapatiënten. Een voorwaarde hiervoor is dat spoedzorg wordt geboden door verpleegkundigen. Daarmee is de BIG-registratie gewaarborgd. Spoedzorg Zoetermeer legt verantwoording af over de manier van werken bij het BIG-register.
Wat gebeurt er bij drukte en ruimtetekort in het gebouw van Spoedzorg Zoetermeer?
Dit zal niet veel verschillen van de huidige situatie. Wel zal er meer flexibiliteit in ruimtes zijn, waardoor er meer mogelijkheden zijn dit op te lossen.
Stel dat Spoedzorg Zoetermeer onverhoopt stopt, is er dan een terugkeergarantie en tot wanneer geldt deze?
Als Spoedzorg Zoetermeer na enige tijd onverhoopt stopt omdat het concept toch niet goed blijkt te werken, dan is er een terugkeergarantie naar de organisatie waar je vandaan komt. Het is op dit moment nog niet bekend tot wanneer deze terugkeergarantie geldig blijft.
Wat voor vacature wordt er uitgezet als een SEH-verpleegkundige besluit te vertrekken?
Het personeels-/ en aannamebeleid van Spoedzorg Zoetermeer is nog niet vastgesteld. Bij vertrek van een medewerker zal het management kijken naar de behoefte van invulling op dat moment. Over het algemeen zal naar 1 op 1 vervanging worden gezocht.
Ik werk momenteel op beide locaties van het HagaZiekenhuis. Kan ik na mijn overgang naar Spoedzorg Zoetermeer ook nog blijven werken in HagaZiekenhuis Den Haag?
Wij vinden het van groot belang dat medewerkers die nu op beide locaties werken, dit kunnen blijven doen na de definitieve overgang naar Spoedzorg Zoetermeer. Dit maken we mogelijk via een detacheringsconstructie: je komt in loondienst bij Spoedzorg Zoetermeer en wordt ‘uitgeleend’ (gedetacheerd) aan HagaZiekenhuis Den Haag.
Hoe krijgt het Ziekenhuis Rampen Opvang Plan (ZiROP) een plaats in Spoedzorg Zoetermeer?
Dat is nu nog niet bekend. Hierover zal een besluit worden genomen in de verdere ontwikkeling van Spoedzorg Zoetermeer.
Is er een overzicht van de verschillen tussen de Cao Ziekenhuizen en de Cao Huisartsenzorg?
Er is al eerder een uitgebreide analyse gemaakt van deze verschillen. Inmiddels is sinds 1 juli 2025 een nieuwe CAO huisartsenzorg van kracht. Het overzicht wordt komende tijd bijgewerkt en we maken een heldere en leesbare samenvatting. Zodra de samenvatting gereed is, zullen wij deze hier delen.
Hoe zit het straks met de functie (beschrijving en waardering) in Spoedzorg Zoetermeer? En hebben we hier invloed op?
Dit is één van de onderwerpen die in 2026 uitgewerkt gaat worden door de kwartiermakersorganisatie. De managers zijn hier onderdeel van en hebben daardoor invloed op de functiebeschrijving en waardering.
Wat is de kwartiermakersorganisatie?
Begin januari 2026 wordt de coöperatie Spoedzorg Zoetermeer opgericht. Deze organisatie bestaat uit de bestuurder (Klara Rijnten), de huidige managers van EZZ, Fundis en SEH Haga en de tijdelijke transitiemanager. Deze kwartiermakersorganisatie zal samen met projectleiders en alle werkgroepen de operationele start van Spoedzorg Zoetermeer voorbereiden.
Hoe zit het met medewerkers die zowel op de HAP als in één van de EZZ dagpraktijken werken?
Er zijn meerdere mensen, ook bij de SEH, die straks bij Spoedzorg Zoetermeer werken en ook op een andere locatie. Wat hiervoor de beste oplossing is, individueel en voor het geheel, moet nog uitgewerkt worden.
Moeten we straks ook overdag werken?
Er zijn triagisten die niet overdag willen werken en ook die juist wel overdag willen werken, bijvoorbeeld omdat dit ook de mogelijkheid biedt voor uitbreiding van uren. Op dit moment onderzoeken we de behoefte naar inzet van triagisten overdag, ook met het oog op de toekomst.
Ik heb nu op de HuisartsenSpoedpost een flexibele overeenkomst waarbij ik kan kiezen of ik wel of niet werk, hoe zit dat straks?
In de Cao Ziekenhuizen zijn ook flexibele overeenkomsten mogelijk.
Welke kleding dragen werknemers van Spoedzorg Zoetermeer?
Er komt een werkgroep waarin gesproken gaat worden over herkenbaarheid en uniformen. Op dit moment werken de triagisten van de HuisartsenSpoedpost in reguliere kleding en zijn daarmee niet te onderscheiden van de patiënten. In de werkgroep zal dit verder uitgewerkt worden.
Ik ben mijn BIG kwijt omdat ik nu niet voldoe aan de eisen, is er de mogelijkheid om deze straks weer te behalen zodat ik breed ingezet kan worden?
De nieuwe organisatie biedt ook weer andere/nieuwe doorgroeimogelijkheden, wellicht is dit ook een van de doorgroeipaden.

